



| 状況 | 土地面積 | 建物面積 | 販売価格(円) |
|---|---|---|---|
| 売家 | 1202.58㎡ | 319.50㎡ | 4,000万円 |
| 所在地 | 愛知郡愛荘町石橋905 |
| 交通 | 近江鉄道本線「愛知川駅」より1.1km |
| 建築条件 | 無し |
| 地目 | 宅地 |
| 都市計画 | 未線引き |
| 用途地域 | 第一種中高層住居専用地域 |
| 用途地域 | 第一種中高層住居専用地域 |
| 地勢 | 平坦 |
| 建ぺい率 | 70% |
| 容積率 | 200% |
| 設備 | 電気、上水道、下水道、側溝 |
| 接道状況 | 一方 |
| 接道方向等 | 北西 幅員3.9m 公道に12.1m接面 |
| 現況 | 所有者使用中 |
| 引渡 | 相談 |
| 取引形態 | 仲介 |
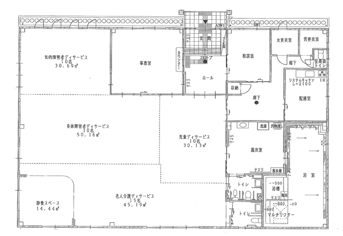
| 部屋構成 | 画像参照 |
| 構造 | 鉄骨造平屋建て |
| 築年数 | H17年2月築 |
| 備考 | ・デイサービスセンター ・再建築(他用途の場合)愛荘町開発指導要綱により開発許可必要 |